Legalisierung
eingereicht wurde eine nachträgliche Legalisierung der Nutzungsänderung des Stalls in einen Abstellraum sowie nachträgliche Legalisierung des Stalls in Wohnraum
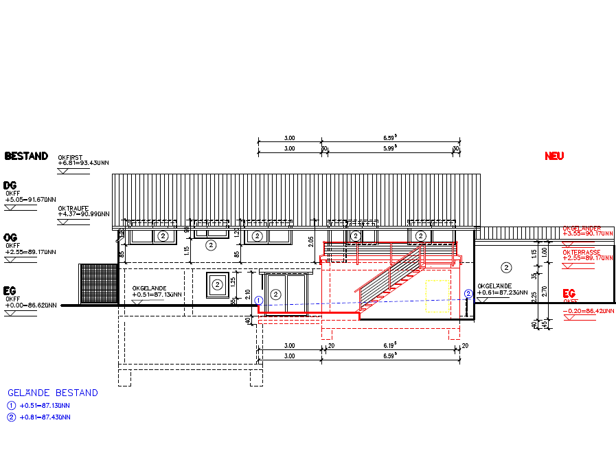
Anbau
Errichtet werden soll ein Anbau in einer Hofanlage mit Zwei Wohneinheiten, welche durch eine Außentreppe zugänglich sind. Zusätzlich wurden auch die entsprechenden Stellplätze mit eingereicht.

