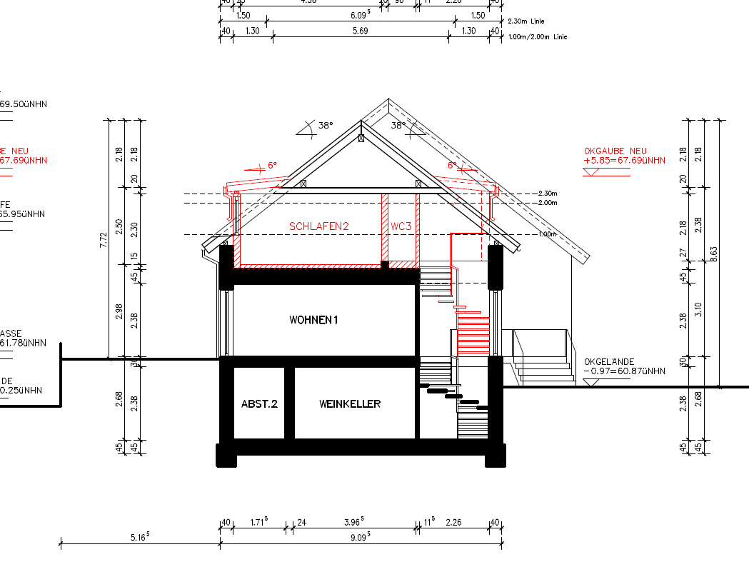
Dachgeschoss
Das Dachgeschoss soll ausgebaut werden und eine neue Wohneinheit soll dort errichtet werden. Der Ausbau erfolgt durch 3 Dachgauben und entsprechenden Treppenaufgang durch das Treppenhaus.
Gauben
Die geplanten Gauben sind Straßenseitig sowie Gartenseitig geplant.

